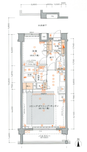
1LDK condo, just 5 min from Takadanobaba Station
Very convenient for commuting to Waseda University! A rare and affordable 1LDK apartment for its quality.
Property Information
|
Type
Condominium
|
Rooms
1LDK
|
||
|
Year Built
2004
|
Available from
Owner Change (Currently leased)
|
||
|
Structure
RC
|
Ownership Type
Freehold
|
||
|
Facilities
|
|||